Das Modul zur professionellen Kalkulation mit CasCADos. Die AVA.relax Bauteilkalkulation ist das optimale Werkzeug für die Erstellung von Mengenermittlungen oder Kalkulationen in der Kombination mit CasCADos. Als Ergebnis erhalten Sie eine Auflistung aller Gewerke mitsamt der jeweiligen Preise. Das daraus resultierende Leistungsverzeichnis kann jederzeit weiterbearbeitet und als Kalkulation ausgedruckt werden.
Das Modul CasCADos Bauteilkalkulation ist in allen AVA.relax-Paketen nutzbar.
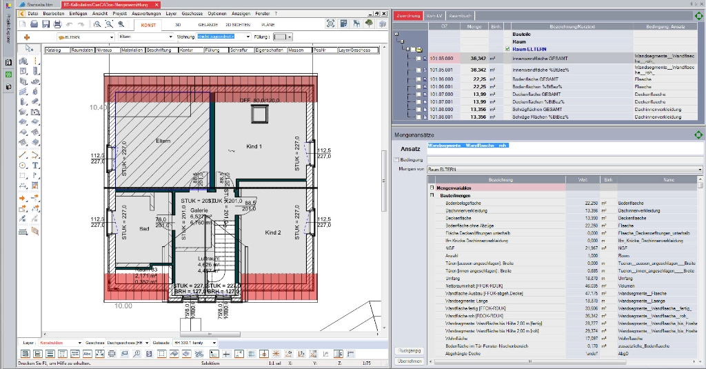
CasCADos Bauteilkalkulation Highlights
✔ Automatische Mengenermittlung
✔ Freie Definition von Bauteilen
✔ Gleichzeitige Darstellung der Bauteile in AVA.relax und CasCADos
✔ Berechnung mit Mengenansätzen und Bedingungen
✔ Zugriff auf Projekt-Mengenvariablen
✔ Mengenzuordnung parametrisierbar
✔ Nachvollziehbare Mengenermittlung
✔ Automatische LV-Generierung
✔ Vollständige Abbildung aller Gewerke
✔ Beliebig viele Kalkulationsvarianten pro Modell
✔ Darstellung aller Mengen
✔ Automatische Raumbucherstellung (Modul Raumbuch erforderlich)
✔ Import DWG, DXF und IFC 2x3
Laden Sie sich alle wichtigen Informationen zur CasCADos Schnittstelle in AVA.relax in der Übersicht als PDF Datei herunter!
